服務熱線
18660192690
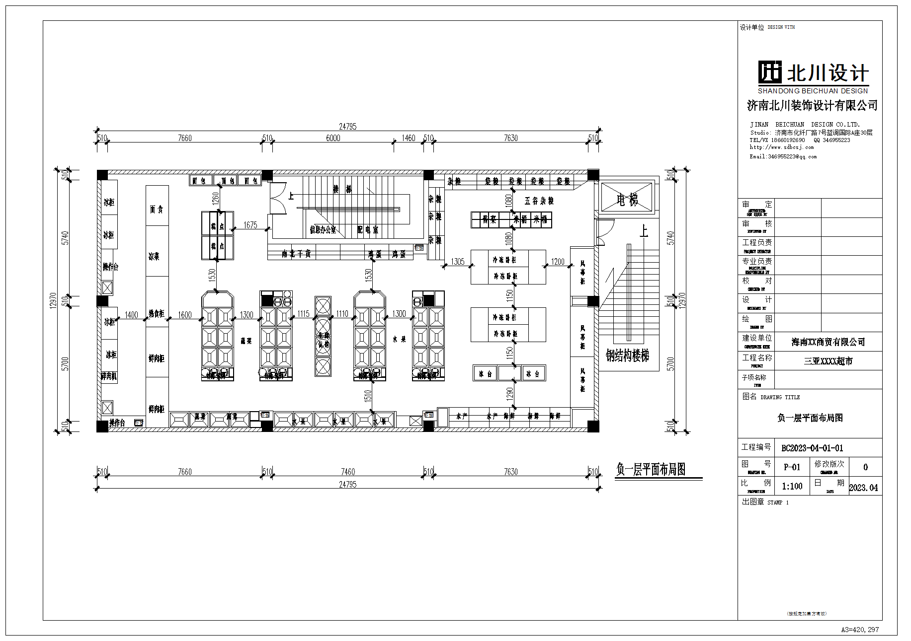
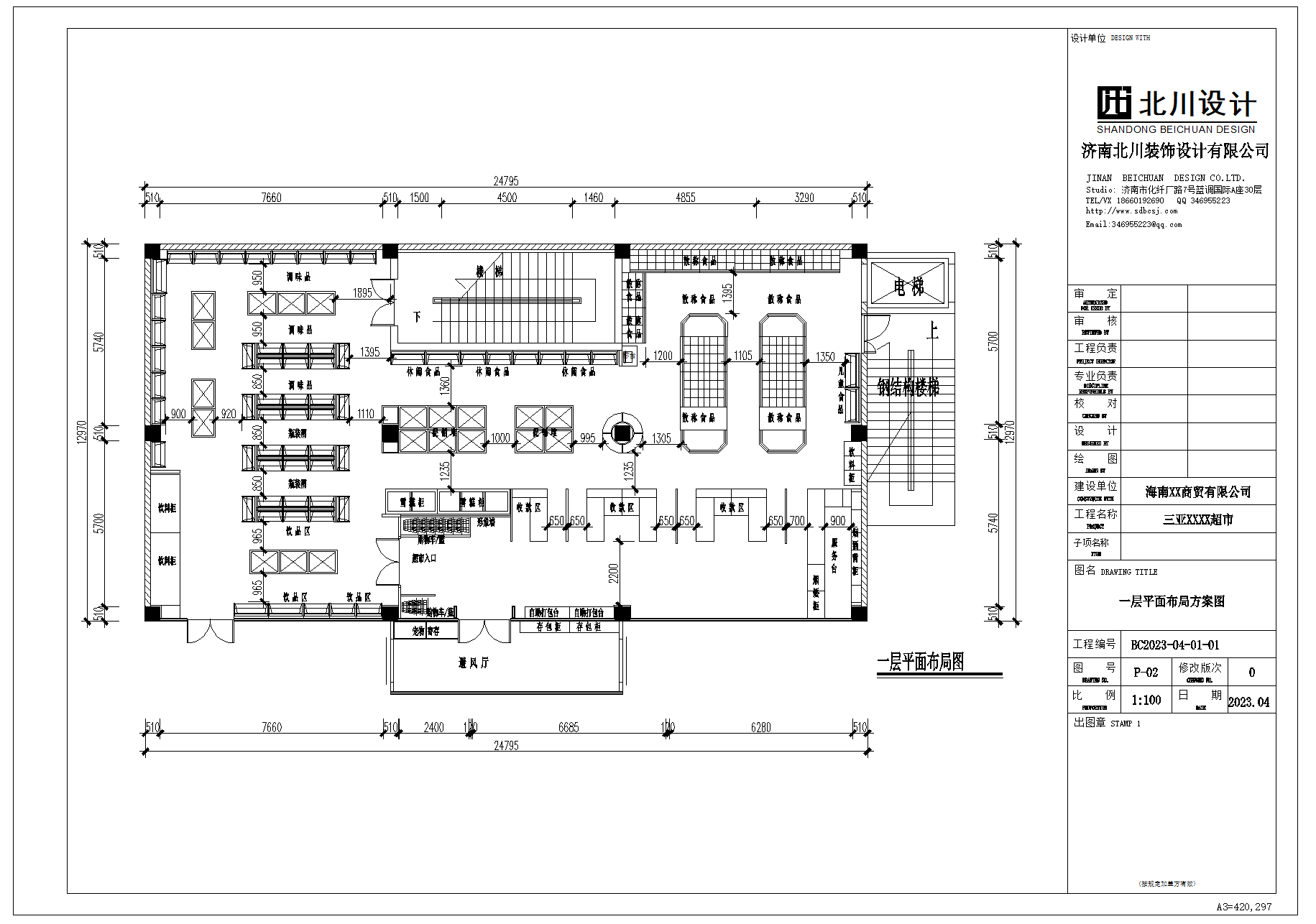
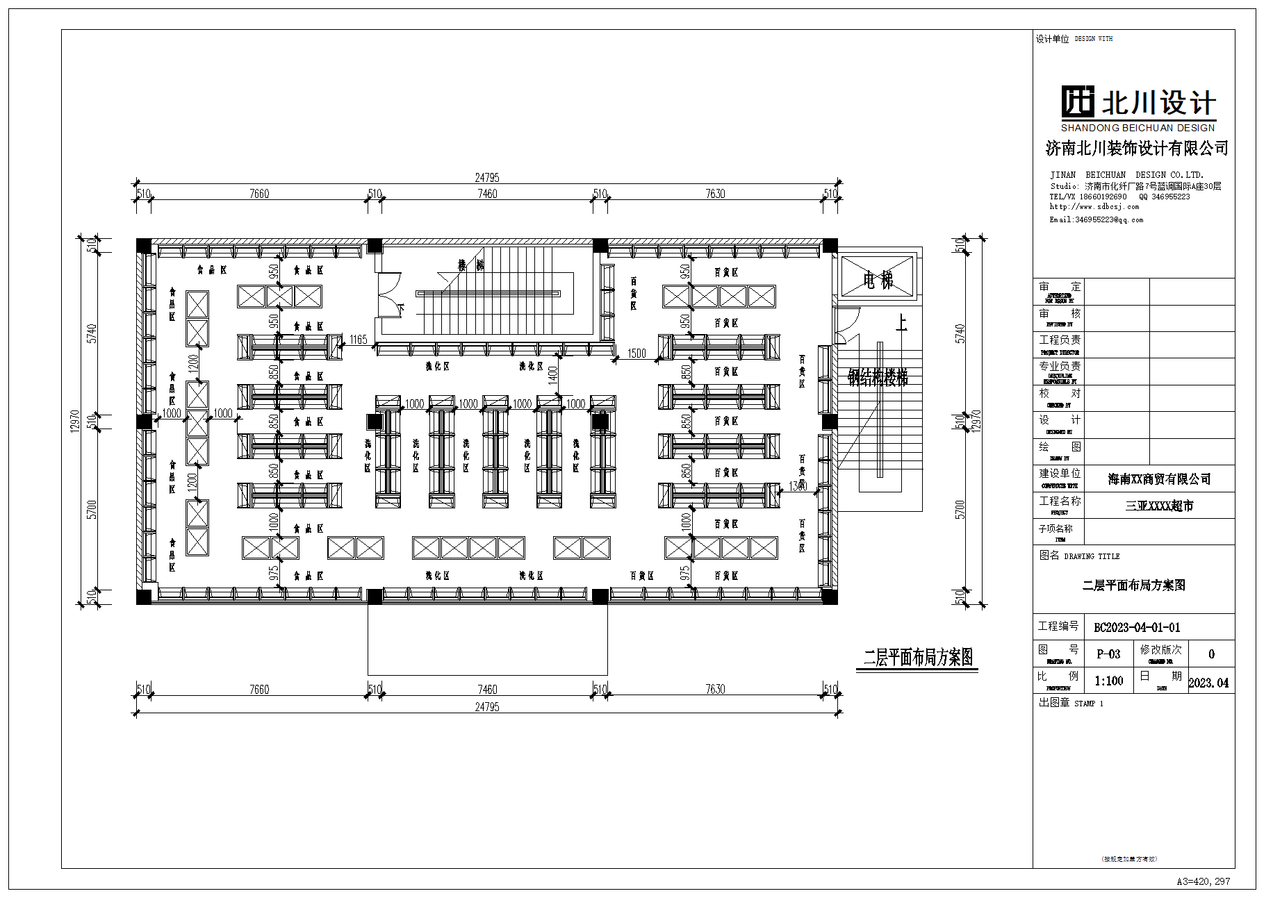
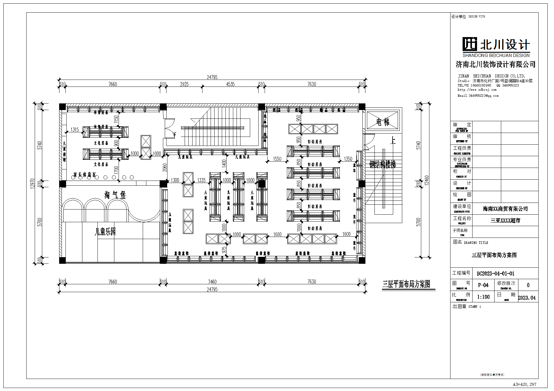
項目概況:名稱:暫未確定名稱;
項目地下一層,地上三層,面積:1200平方米;
項目方圓一公里內常駐人口3萬人,緊鄰幼兒園,安置回遷小區和辦公商務區;






山東北川設計-超市設計、商場設計、農貿市場菜市場裝修設計
微信/電話:18660192690
豬八戒店鋪:http://shop.zbj.com/10454527/
北川官網:m.judianpu.cn
上一篇:山東濟寧精品超市設計效果落地回訪
下一篇:未來5-10年超市發展展望